SYLVIE WILLEMS Négociatrice
Télécharger la fiche

Villa 5 pièce(s) 3 chambre(s) 116.27 m²

Decize (58300)
231 000 € Référence 221

A propos de ce bien

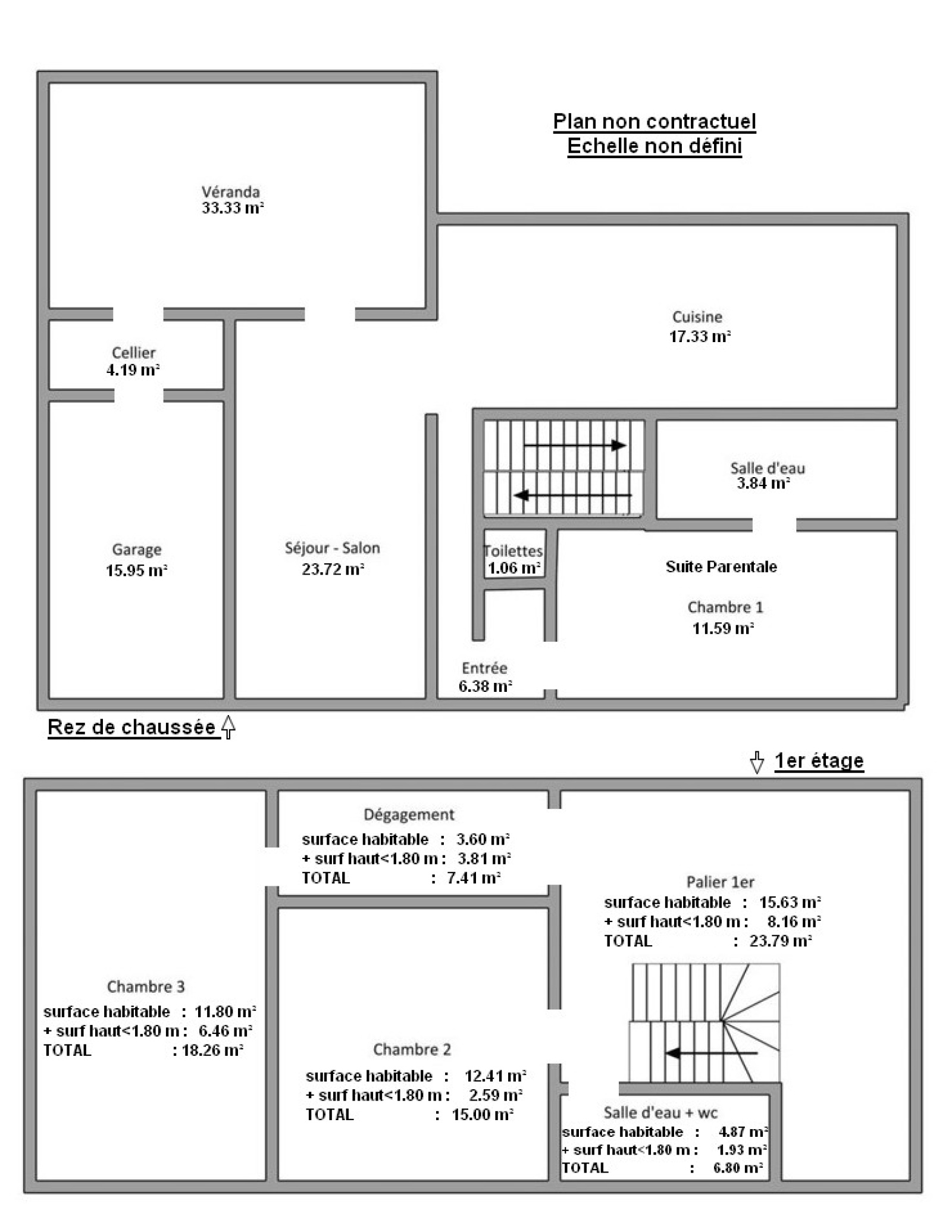
Situé à 2,6 km du centre de Decize, cette belle maison familiale  de149 m² vous séduira par ses prestations de qualité, son emplacement privilégié à proximité immédiate des écoles, collège et lycées, du centre hospitalier et supermarché.

Idéale pour une famille, elle offre un cadre de vie confortable et fonctionnel. Au rez-de-chaussée un séjour de 23 m2 prolongé par une vaste véranda de 30 m2 parfaite pour profiter de la lumière toute l’année. La cuisine équipée et moderne, dernière tendance ravira les amateurs de gastronomie. La suite parentale dispose de sa propre salle d’eau avec douche à l’italienne offrant intimité et confort.

 A l’étage, deux chambres accueillantes et une salle de bains complète l’espace nuit une 3e chambre peut facilement être aménagée sur la mezzanine selon votre besoin

Le terrain de 638 m² accueille une superbe piscine couverte de 6 par 4 mètre idéale pour se détendre en toutes saisons.

Les prestations sont au rendez-vous : carrelage neuf au rez-de-chaussée,  huisseries et volets roulants solaires récents en aluminium, climatisation réversible atlantique et insert à granulés pour un confort optimal et panneaux solaires pour plus d’économies d’énergie.

Garage, atelier, cave et abris de jardin.

Cette maison n’attend plus que vous. Prenez contact avec nous pour organiser une visite .


Les informations sur les risques auxquels ce bien est exposé sont disponibles sur le site Géorisques

Caractéristiques de ce bien

  • Surface 116,27 m²
  • carrez 116 m²
  • terrain 638 m²
  • séjour 23 m²
  • 3 chambre(s)
  • 1 salle(s) de bain
  • 1 salle(s) d'eau
  • construit en 1980
  • Chauffage individuel : cheminée (granules)
  • Chauffage individuel : air pulsé (climatisation)
  • 1 garage(s)
  • 2 niveau(x)
  • cave
  • piscinable

Diagnostics énergétiques

Consommation énergétique
A B C D E F G
Emission de gaz à effet de serre
A B C D E F G
DPE ANCIENNE VERSION

Informations financières

Prix de vente honoraires TTC inclus 231 000 €
Prix de vente honoraires TTC exclus 220 000 €
Honoraires TTC à la charge acquéreur 5 %
Taxe foncière annuelle 2 000 €

Calcul des mensualités

* Champs obligatoires