Pierre François Transactions Agence
Télécharger la fiche

Fonds de commerce 217 m²

Nevers (58000)
122 000 € Référence PVCO10000481

A propos de ce bien

CENTRE VILLE EN BORDURE D'UN AXE PASSANT
INSTALLEZ VOUS POUR LE PRIX DE L'IMMEUBLE
qui est quasiment prêt à fonctionner en bar restaurant...

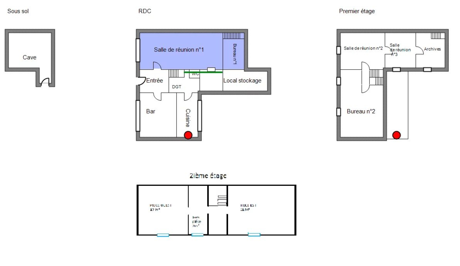
Les locaux comprennent:

Au rez de chaussée,
- une salle de bar de 21m² avec comptoir opérationnel,
- une grande salle à manger de 39m² ouverte sur large trottoir, plus arrière salle de 9m²,
- une cuisine toute équipée de 9m²
- un jardin terrasse aménagé de 96m² bordant la rivière Nièvre, avec barbecue et préau bar
- Sanitaire , locaux de rangement et vaste cave de 25m² en dessous .

Au premier étage:
- pouvant constituer des compléments de locaux , ou pouvant servir de logement
- 3 pièces de 23m², 20m² et 12m²,
- une kitchenette de 4m²,
- une salle de bains de 15m²

Au second étage:
- 2 mansardes aménageables de 25m² et de 21m²

L'ensemble est en bon état sauf les combles.
Le Chauffage central au gaz est opérationnel.
Plusieurs parkings publics gratuits à proximité.
De nombreux commerces à proximité.
A 5 minutes des promenades de bords de Loire de la maison des sports de la maison de la culture et des zones piétonnes

Caractéristiques de ce bien

Activités

  • Type de transaction Fonds de commerce

Agencement

  • Superficie m2 217 m²

Secteur

  • Code postal 58000
  • Ville Nevers

Agencement extérieur

  • Nombre d'étage 2

Calcul des mensualités

* Champs obligatoires

Diagnostics énergétiques

Consommation énergétique
A B C D E F G
Emission de gaz à effet de serre
A B C D E F G
DPE ANCIENNE VERSION

Informations financières

Prix de vente honoraires inclus 122 000 €